Щиты ОЩ-6 (ВА4729 6*25А) - это навесные осветительные щитки с выключателем. Предназначаны для распределения электроэнергии, нечастых оперативных включений/отключений электроцепей. Так же применяются для защиты от коротких замыканий и перегрузок сетей освещения трехфазного тока переменного 380/220В напряжением частотой 50Гц.
Комплектуются выключателями автоматическими в зависимости от числа отходящих групповых линий.
Выполняются в корпусах из металла, которые обеспечивают защиту IP31 или IP54.
Аппаратура размещается в ящике на Din-рейке.
Номинальный ток расцепителей автоматических выключателей на вводе и отходящих линиях указывается при заказе.
Назначение
- Щиты выполняют прием электроэнергии и распределение, выключение аварийное, а так же производят нечастые включения/отключения электроцепей.
Технические характеристики
- Страна производитель – Россия;
- Производство – г. Челябинск, ООО Завод «Электроконтактор»;
- Ток номинальный ВА4729 – 25А;
- Исполнение – наружное;
- Установки способ – навесной;
- Контактируемые среды - невзрывоопасная среда, не содержащая токопроводящей пыли и химически активных веществ;
- Степень защиты по ГОСТ 14254-96 - IP 31;
Условное обозначение
ОЩ-6 X2
- ОЩ – осветительный щиток с вводными выключателями;
- 6 – количество полюсов распред. выключателей;
- X2 – категория размещения;
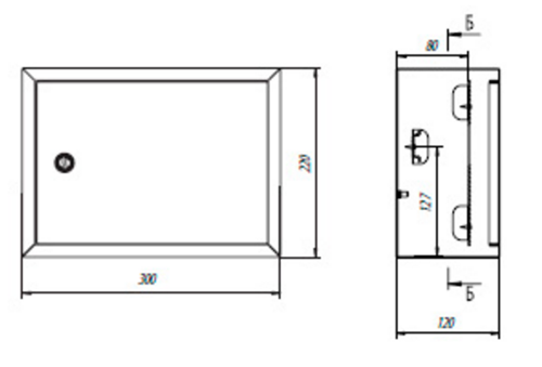
Габаритные размеры












